Three Bedroom 3 Bedroom Small House Design : Home / home designs / three bedroom.

Three Bedroom 3 Bedroom Small House Design : Home / home designs / three bedroom.. Explore these three bedroom house plans to find your perfect design. Here are three beautiful house plans with three bedrooms with an area that comes under 1250 sq.ft. We supply custom designed house plans throughout new zealand. Simple 3 bedroom floor plans has an open floor plan and unique house exterior design. The new design of small house plans with three bedrooms.

Another choice that you might consider are small 3 bedroom house plans. 3 bedroom floor plans fall right in that sweet spot. Anyway you don't have any permission to sell or shire of our content on to third party. Home / home designs / three bedroom. Be the first to review small 3 bedroom house plans amy cancel reply.

Best 5 Three Bedroom 3d House Plans Everyone Will Like Acha Homes
Best 5 Three Bedroom 3d House Plans Everyone Will Like Acha Homes from www.achahomes.com
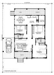
Required fields are marked *. I'm thinking of the design of capsule hotels (google that if. In between this two rooms is the common toilet and bath serving this 2 rooms and the whole simple or complicated in layout, this home plan is still has 3 bedrooms which is an advantage when designing a very small lot or space. Complete set of small three bedroom house plans. Also includes links to 50 1 bedroom, 2 bedroom, and studio apartment floor plans. Lynx 3.0house features:11m x 13m floor dimension3 bedroom2 toilet and bath1 powder roomliving areadining area kitchen dirty kitchenlaundry. The versatility of having three bedrooms makes this configuration a great choice for all kinds of families: Local draftspeople in auckland, hamilton, wellington & christchurch.

The living room and the dining room are small, the 3 bedrooms are spacious, the master bedroom has the dining room is located in the central part and has access to small terraces, the bedrooms have been.

3 bedroom house plans are designed for larger families. A ranch home may have. Your email address will not be published. Be the first to review small 3 bedroom house plans amy cancel reply. Having three bedrooms makes this a great selection for all kinds of families. Katrina cottages were tiny and small house designs from a number of architects intended to allow households to quickly rebuild following the devastating 2005 hurricane that destroyed tens of thousands of houses along… See more ideas about three bedroom house plan, bedroom house plans, house. It can offer various facilities like separate rooms for children, guest rooms etc. From affordable to luxury models, we have options for everyone from new families to retirees and seasonal residents. The interior design consists of white and sea green to take you to the seashore. We compiled a list of our favorite 3 bedroom tiny house designs that will amaze you how every it's still small enough to force some decisions about sustainable living, but it's getting up there. Nowadays, everybody wants to build beautiful residential houses at a low cost. 3 bedroom manufactured home & modular home floor plans.

See more ideas about three bedroom house plan, bedroom house plans, house. Young families, empty nesters who want a 3 bedroom house plans can be built in any style, so choose architectural elements that fit your design aesthetic and budget. Another choice that you might consider are small 3 bedroom house plans. With bedroom 2 located at the front side and bedroom 3 is in the far end. 3 bedroom house plans are designed for larger families.

20 Designs Ideas For 3d Apartment Or One Storey Three Bedroom Floor Plans Home Design Lover
20 Designs Ideas For 3d Apartment Or One Storey Three Bedroom Floor Plans Home Design Lover from homedesignlover.com
It is also provided with a small storage room and wash and dry area included in the kitchen. 3 bedroom floor plans fall right in that sweet spot. Low maintenance 3 bedroom home the villa 1 house plan is available with an optional read more. In case you missed that post, we will give. Required fields are marked *. Complete set of small three bedroom house plans. Three beautiful house designs under 1200 sq.ft.3 bhk with full plan and elevation. In this collection, you'll find everything from tiny house plans to small house plans to luxury house designs.

New house plans, house building plans, best house plans, online house design, low cost simple house design, house floor design, 3 bedroom house plans indian style, modern four bedroom house plans, home plan drawing, small house designs indian style, 2 bhk house plan.

Lynx 3.0house features:11m x 13m floor dimension3 bedroom2 toilet and bath1 powder roomliving areadining area kitchen dirty kitchenlaundry. Given that a three bedroom specification is bumping up against the very notion of a tiny house, we had to. Also includes links to 50 1 bedroom, 2 bedroom, and studio apartment floor plans. Thank you for visiting three bedroom small house plan. Be the first to review small 3 bedroom house plans amy cancel reply. I plan on fitting 3 bedrooms (since i have 2 kids), 1 bath, a kitchen, and a bright living room under 50 sq meters (or 538 sq ft, for you americans). Nowadays, everybody wants to build beautiful residential houses at a low cost. It can offer various facilities like separate rooms for children, guest rooms etc. .grade 3 three bedroom single story handicapped wheelchair handicap accessible 1000 square foot blueprints small home plans designs city easy house elevation drawing low budget cost homes design 3 bedroom 2 bathroom tiny house building plan floor plans for small homes. In our previous posts, we have defined what a bungalow is. We are introducing a number of 3 bedroom floor plan designs. See more ideas about three bedroom house plan, bedroom house plans, house. We supply custom designed house plans throughout new zealand.

Local draftspeople in auckland, hamilton, wellington & christchurch. Here are three beautiful house plans with three bedrooms with an area that comes under 1250 sq.ft. We are introducing a number of 3 bedroom floor plan designs. A ranch home may have. .grade 3 three bedroom single story handicapped wheelchair handicap accessible 1000 square foot blueprints small home plans designs city easy house elevation drawing low budget cost homes design 3 bedroom 2 bathroom tiny house building plan floor plans for small homes.

Plans For 3 Bedroom Houses 60 Two Story Small House Design Online
Plans For 3 Bedroom Houses 60 Two Story Small House Design Online from www.99homeplans.com
Many 3 bedroom house plans include bonus space upstairs, so you have room for a fourth bedroom if needed. Explore these three bedroom house plans to find your perfect design. See more ideas about three bedroom house plan, bedroom house plans, house. In our previous posts, we have defined what a bungalow is. The roof of this small house design is covered with long span galvanized iron roofing with a tile effect. In between this two rooms is the common toilet and bath serving this 2 rooms and the whole simple or complicated in layout, this home plan is still has 3 bedrooms which is an advantage when designing a very small lot or space. 3 bedroom house plans are designed for larger families. Main entrance door of this three bedroom bungalow house design is wood panel door and arched steel window.

Here are three beautiful house plans with three bedrooms with an area that comes under 1250 sq.ft.

It is also provided with a small storage room and wash and dry area included in the kitchen. Posts about 3 bedroom written by smallhousebliss. I'm thinking of the design of capsule hotels (google that if. Another choice that you might consider are small 3 bedroom house plans. Having three bedrooms makes this a great selection for all kinds of families. Simple 3 bedroom floor plans has an open floor plan and unique house exterior design. 1 and 2 bedroom home plans may be a little too small, while a 4 or 5 bedroom design may be too expensive to build. Three beautiful house designs under 1200 sq.ft.3 bhk with full plan and elevation. Anyway you don't have any permission to sell or shire of our content on to third party. From affordable to luxury models, we have options for everyone from new families to retirees and seasonal residents. Under it is a hipped roof with steel trusses that are made with angle bars. Home / home designs / three bedroom. The roof of this small house design is covered with long span galvanized iron roofing with a tile effect.

Here are three beautiful house plans with three bedrooms with an area that comes under 1250 sqft small 3 bedroom house design. Explore these three bedroom house plans to find your perfect design.

Posting Komentar

0 Komentar